Everyone's idea of a comfortable and pleasing space differs, but for this family, the goal was to create a playful, fun, feminine, and elegant home that is also practical and easy to maintain.
The flat was previously dim, outdated and run-down with wood cabinetry and doors in varying tones of orange, dated fixtured and mismatched floor tiles. The family has lived in this house since 2000 and decided to do a full-scale overhaul. They wanted a fresh start, something brighter, more cohesive, and reflective of their current lifestyle and tastes.
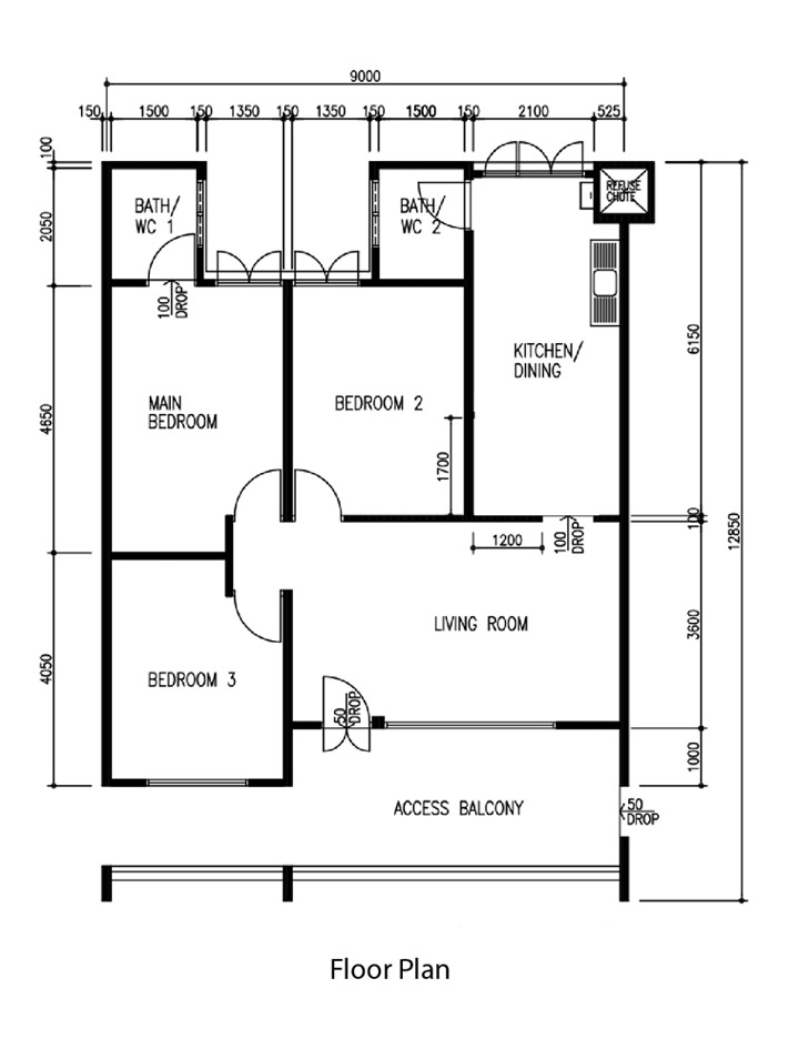
Room Type: Resale 4 Room HDB Flat
Location: 132 Bedok Reservoir Road
Homeowner Name: Jessie
Size: 969 Sqft
Renovation Period: 4 Months
Renovation Cost: $75,000
The style and colours take on a softer, more feminine spin, Joseph, the designer from Monoloft, was able to strike a gender-neutral balance that isn’t overly saccharine, so every occupant still feels right at home in this space.
The concept behind the foyer design is keeping functionality and style in mind. Also, a delegate space for keys, purses and mail letters, making it convenient to grab essentials on the way out or back from home. The full-height cabinet provides ample storage space for their shoe collections, and the cozy nook with seating makes putting on shoes easier.
We also enhance the foyer with a tinted mirror, which serves as a practical way to check one’s outfit before heading out, while also creating the illusion of space.
The TV feature wall is the very epitome of the home’s style. Baby pink fluted panels run across its length, ending with a curved detail encompassing open shelves and seemingly enveloping the living space, creating a cozy cocooned atmosphere.
The TV is hung behind a terrazzo laminated wall, adding an extra layer of interest and colour. This isn’t the only appearance of terrazzo motifs. You also see it in the custom-built shoe cabinet by the foyer the very moment you step inside the house. Terrazzo here backs a functional landing space for keys, wallets and letters, while the rest of the storage piece is covered in the same pink fluted panels as in the living room as well as a tinted mirror for one final look before heading out the door.
The kitchen used to be a closed one, so a larger kitchen was proposed. Wall fronting the kitchen space was hacked, and the expanded layout also allowed for additional storage and worktops, which helped to maximise efficiency in the cooking zone. Furthermore, this alleviates the sense of space here, affording them room for a larger refrigerator.
Teal cabinets juxtapose next to woodgrain countertops, while the backsplash features a herringbone pattern that lifts up the energy of this space. The washing machine is seamlessly hidden underneath the countertop, which acts as a room divider and laundry space. What’s also interesting here is the sleek cabinet that conceals the rubbish chute cover, often seen in older flats in Singapore.Â
A wall-mounted, bar-height table wraps around the other side of the kitchen. Extending out to the wall outside, it functions as a casual dining spot for the family and a nook for entertaining guests. Terrazzo appears here again, with concealed LED lights adding a lively glow.Â
One of the bedrooms was set aside for a walk-in wardrobe, which the family shares between them. Following the style of the home, the closet area is swathed in pinks and wood tones, with a groovy herringbone pattern offering some additional texture.
The master bedroom is decorated in soothing shades of sky blue and nude pink, with wood accents for that touch of warmth. Designed for practicality as much as for style, it features a platform bed that doubles as extra storage space. A customised dressing table also functions as a workstation behind the black pillars to provide privacy and segregation from the sleep zone.
In the other bedroom, which the homeowners’ daughter uses, a study desk double as a dressing table with a flip-up mirror built-in is fused together with the bed, taking up most of the area. Instead of breaking these different functions up, their amalgamation has offered a neater room and a better flow of the space. Geometric shapes in pastels enliven the space.
Sticking to neutrals would have been the safer option, but for Joseph, the designer from Monoloft, it was more important that the home he designed truly reflected the people he designed for. Opting for unconventional hues like pinks, blues and teals was certainly not easy and was a daring decision requiring major design confidence. But having pulled it off in the end and seeing how everything came together to result in such a unique, personal space for the family, made it all worthwhile.